物件ID:156042
情報公開日:2025年04月16日
情報更新日:2025年12月10日
立地
-
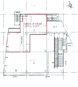
住所 千葉県習志野市谷津七丁目8-1 建物名/所在階 2階 最寄駅 JR総武本線津田沼駅
徒歩2分近隣駅1 ー 近隣駅2 ー
費用/契約
-
造作価格 ー 賃料(坪単価) 935,000円(24,807円) 管理費/共益費(坪単価) ー(ー) 保証金/敷金 ー / 10ヶ月 償却 10% 礼金 1ヶ月 更新料/再契約料 0 その他費用 屋根上看板使用料2面20万円/(税別) 仲介手数料 1ヶ月 その他手数料 ー 契約期間 10年 契約種別 普通賃貸借
用途
-
物件の現況 ー 可能用途 ご相談 坪数 37.69坪
- 備考



















