物件ID:191172
情報公開日:2026年02月10日
情報更新日:2026年02月10日
立地
-
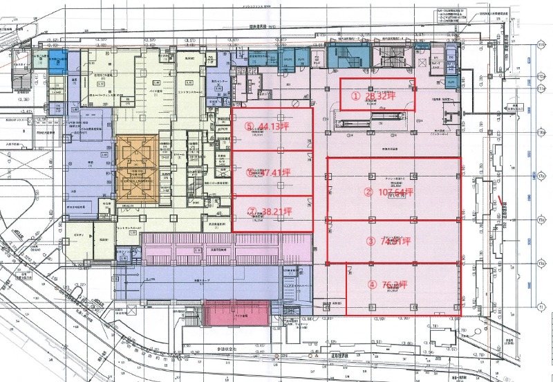
住所 千葉県船橋市本町一丁目2-1 建物名/所在階 (仮称)プレミストタワー船橋1-⑥/1階 最寄駅 JR中央・総武線船橋駅
徒歩1分近隣駅1 JR総武本線船橋駅
徒歩1分近隣駅2 東武野田線船橋駅
徒歩1分
費用/契約
-
造作価格 ー 賃料(坪単価) ご相談(0円) 管理費/共益費(坪単価) ー(ー) 保証金/敷金 12ヶ月 / ー 償却 0% 礼金 2ヶ月 更新料/再契約料 ー その他費用 ー 仲介手数料 1ヶ月 その他手数料 ー 契約期間 5年 契約種別 普通賃貸借
用途
-
物件の現況 ー 可能用途 指定あり 坪数 47.41坪
- 備考





















