物件ID:173964
情報公開日:2025年09月19日
情報更新日:2026年03月12日
立地
-
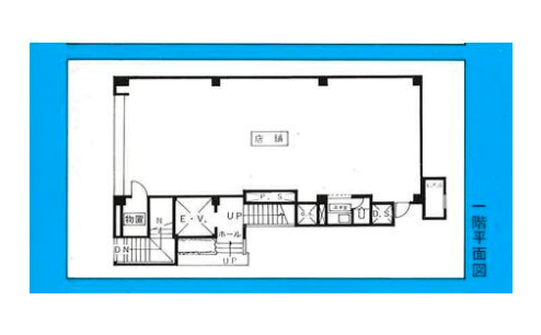
住所 千葉県柏市千代田一丁目5-40 建物名/所在階 第三柏中央ビル 1F/1階 最寄駅 JR常磐線(上野~取手)柏駅
徒歩13分近隣駅1 ー 近隣駅2 ー
費用/契約
-
造作価格 ー 賃料(坪単価) 390,830円(12,097円) 管理費/共益費(坪単価) 16,150円(499円) 保証金/敷金 10ヶ月 / ー 償却 ご相談 礼金 1ヶ月 更新料/再契約料 ー その他費用 ー 仲介手数料 1ヶ月 その他手数料 ー 契約期間 3年 契約種別 普通賃貸借
用途
-
物件の現況 ー 可能用途 指定あり 坪数 32.31坪
- 備考



















