物件ID:167449
情報公開日:2025年07月24日
情報更新日:2025年10月17日
立地
-
住所 千葉県松戸市本町1-13 建物名/所在階 1~2階 最寄駅 JR常磐線(上野~取手)松戸駅
徒歩1分近隣駅1 ー 近隣駅2 ー
費用/契約
-
造作価格 ー 賃料(坪単価) 437,800円(19,901円) 管理費/共益費(坪単価) ー(ー) 保証金/敷金 10ヶ月 / 0ヶ月 償却 1ヶ月 礼金 1ヶ月 更新料/再契約料 ー その他費用 指定賃貸保証利用可 火災保険加入要 仲介手数料 1ヶ月 その他手数料 ー 契約期間 10年 契約種別 普通賃貸借
用途
-
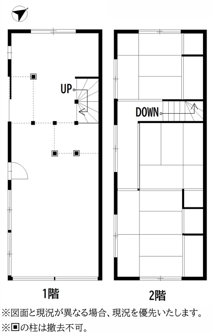
物件の現況 ー 可能用途 指定あり 坪数 22.00坪
- 備考
- 各階10.99坪 1Fスケルトン 2F店舗利用・住居利用原則不可
撤去できない柱あり 中途解約可



















