物件ID:188868
情報公開日:2026年01月24日
情報更新日:2026年01月24日
立地
-
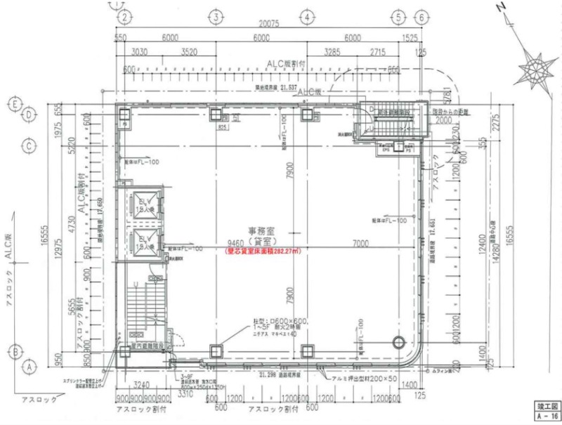
住所 千葉県千葉市中央区富士見一丁目1 建物名/所在階 JSBldg./2階 最寄駅 JR中央・総武線千葉駅
徒歩3分近隣駅1 ー 近隣駅2 ー
費用/契約
-
造作価格 ー 賃料(坪単価) 2,347,950円(27,497円) 管理費/共益費(坪単価) ー(ー) 保証金/敷金 12ヶ月 / ー 償却 0% 礼金 1ヶ月 更新料/再契約料 ー その他費用 ー 仲介手数料 1ヶ月 その他手数料 ー 契約期間 5年 契約種別 普通賃貸借
用途
-
物件の現況 ー 可能用途 指定あり 坪数 85.39坪
- 備考























