物件ID:185835
情報公開日:2025年12月24日
情報更新日:2026年02月19日
立地
-
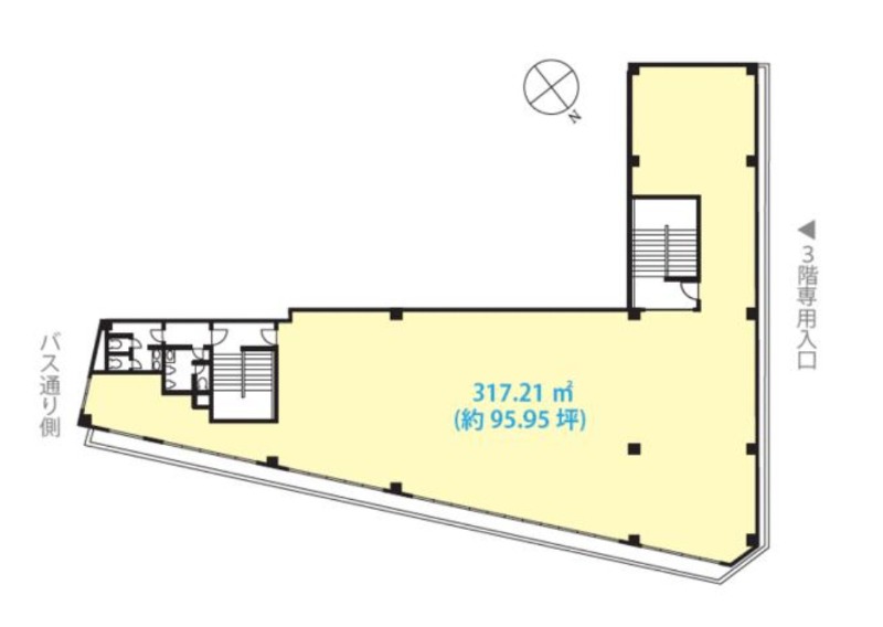
住所 千葉県船橋市前原西二丁目14-2 建物名/所在階 津田沼駅前安田ビル 別館/3階 最寄駅 JR中央・総武線津田沼駅
徒歩2分近隣駅1 ー 近隣駅2 ー
費用/契約
-
造作価格 ー 賃料(坪単価) 1,160,995円(12,100円) 管理費/共益費(坪単価) ー(ー) 保証金/敷金 ー / 6ヶ月 償却 0% 礼金 1ヶ月 更新料/再契約料 ご相談 その他費用 火災保険・指定保証会社加入要 仲介手数料 1ヶ月 その他手数料 ー 契約期間 5年 契約種別 普通賃貸借
用途
-
物件の現況 サービス(その他) 可能用途 指定あり 坪数 95.95坪
- 備考
- 飲食相談 事務所仕様/引渡状態応相談 3階貸室専用入口あり
OAフロア タイルカーペット 個別空調 EV無 解約予告6ヶ月前
専有部に男女別トイレあり 天井高:2450mm 再契約相談可






















