物件ID:183591
情報公開日:2025年12月05日
情報更新日:2026年02月03日
立地
-
住所 千葉県柏市柏二丁目8-16 建物名/所在階 レイヴェル31/2階 最寄駅 JR常磐線(上野~取手)柏駅
徒歩3分近隣駅1 東武野田線柏駅
徒歩3分近隣駅2 ー
費用/契約
-
造作価格 ー 賃料(坪単価) 1,302,048円(19,798円) 管理費/共益費(坪単価) 224,242円(3,409円) 保証金/敷金 10ヶ月 / 0ヶ月 償却 ご相談 礼金 1ヶ月 更新料/再契約料 1ヶ月 その他費用 廃棄物処理費:52,000円/月 仲介手数料 1ヶ月 その他手数料 ー 契約期間 3年 契約種別
用途
-
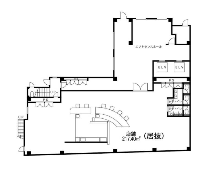
物件の現況 レストラン 可能用途 何業も可 坪数 65.76坪
- 備考





















