物件ID:170340
情報公開日:2025年08月21日
情報更新日:2026年02月10日
立地
-
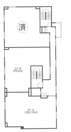
住所 千葉県柏市柏二丁目5-14 建物名/所在階 PRAXIS柏 A区画/2階 最寄駅 JR常磐線(上野~取手)柏駅
徒歩3分近隣駅1 ー 近隣駅2 ー
費用/契約
-
造作価格 ー 賃料(坪単価) 567,952円(17,596円) 管理費/共益費(坪単価) ー(ー) 保証金/敷金 10ヶ月 / ー 償却 ご相談 礼金 1ヶ月 更新料/再契約料 ご相談 その他費用 保険加入要 保証会社利用可 仲介手数料 1ヶ月 その他手数料 ー 契約期間 10年 契約種別 普通賃貸借
用途
-
物件の現況 ー 可能用途 指定あり 坪数 32.28坪
- 備考
- 事務所仕様相談可 契約期間等、諸条件相談可 再契約可
医療系以外の業種は定期借家5年 IT重説対応物件 新耐震基準
非接触型ICカードキー 24時間セキュリティー エレベーター



















