物件ID:166025
情報公開日:2025年07月10日
情報更新日:2026年03月03日
立地
-
住所 千葉県千葉市中央区新町1000 建物名/所在階 1~2階 最寄駅 JR中央・総武線千葉駅
徒歩1分近隣駅1 ー 近隣駅2 ー
費用/契約
-
造作価格 ー 賃料(坪単価) ご相談(0円) 管理費/共益費(坪単価) 966,506円(3,345円) 保証金/敷金 ー / ご相談 償却 ご相談 礼金 ご相談 更新料/再契約料 ー その他費用 ー 仲介手数料 1ヶ月 その他手数料 ー 契約期間 ー 契約種別
用途
-
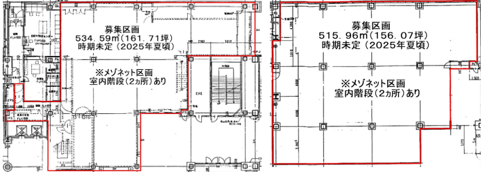
物件の現況 サービス(その他) 可能用途 指定あり 坪数 317.79坪
- 備考
- 保証会社加入必須 保険加入必須




















