物件ID:160761
情報公開日:2025年05月30日
情報更新日:2026年02月19日
立地
-
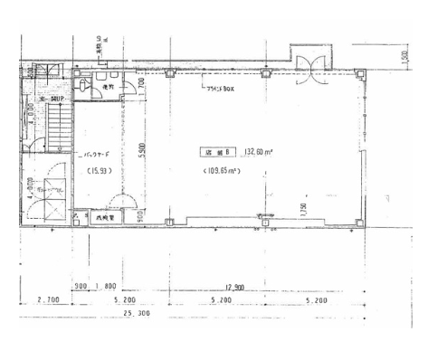
住所 千葉県佐倉市大崎台三丁目1-1 建物名/所在階 志志久良ビル 102/1階 最寄駅 JR総武本線佐倉駅
徒歩4分近隣駅1 ー 近隣駅2 ー
費用/契約
-
造作価格 ー 賃料(坪単価) 465,300円(11,600円) 管理費/共益費(坪単価) ー(ー) 保証金/敷金 ー / 3ヶ月 償却 ご相談 礼金 1ヶ月 更新料/再契約料 ー その他費用 ー 仲介手数料 1ヶ月 その他手数料 ー 契約期間 5年 契約種別
用途
-
物件の現況 サービス(その他) 可能用途 指定あり 坪数 40.11坪
- 備考



















