物件ID:181679
情報公開日:2025年11月20日
情報更新日:2026年04月13日
立地
-
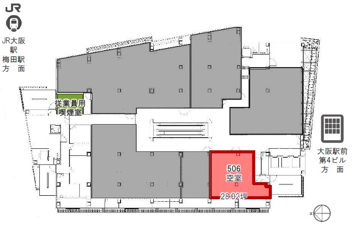
住所 大阪市北区梅田一丁目12-6 建物名/所在階 イーマ/5階 最寄駅 大阪メトロ御堂筋線梅田駅
徒歩2分近隣駅1 大阪メトロ谷町線東梅田駅
徒歩2分近隣駅2 JR京都線大阪駅
徒歩4分
費用/契約
-
造作価格 ー 賃料(坪単価) ご相談(0円) 管理費/共益費(坪単価) ー(ー) 保証金/敷金 0ヶ月 / 12ヶ月 償却 0% 礼金 0ヶ月 更新料/再契約料 ー その他費用 入居工事の際、内装監理費負担有り 仲介手数料 1ヶ月 その他手数料 ー 契約期間 ー 契約種別 普通賃貸借
用途
-
物件の現況 ー 可能用途 指定あり 坪数 28.02坪
- 備考


















