物件ID:186336
情報公開日:2026年01月06日
情報更新日:2026年03月02日
立地
-
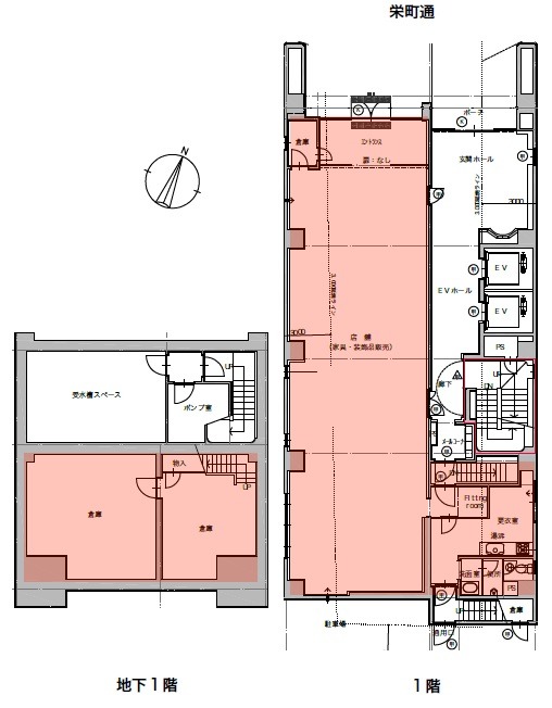
住所 神戸市中央区栄町通二丁目4-13 建物名/所在階 神栄ビル/地下1~1階 最寄駅 JR神戸線(大阪~神戸)元町駅
徒歩6分近隣駅1 夢かもめみなと元町駅
徒歩5分近隣駅2 ー
費用/契約
-
造作価格 ー 賃料(坪単価) 1,650,000円(22,082円) 管理費/共益費(坪単価) ー(ー) 保証金/敷金 0ヶ月 / ご相談 償却 0% 礼金 0ヶ月 更新料/再契約料 ー その他費用 ー 仲介手数料 1ヶ月 その他手数料 ー 契約期間 ー 契約種別
用途
-
物件の現況 物販 可能用途 ご相談 坪数 74.72坪
- 備考


















