物件ID:181816
情報公開日:2025年11月21日
情報更新日:2026年03月13日
立地
-
住所 大阪市福島区福島六丁目18-3 建物名/所在階 コンフォリア・リヴ新梅田/1階 最寄駅 大阪環状線福島駅
徒歩9分近隣駅1 ー 近隣駅2 ー
費用/契約
-
造作価格 ー 賃料(坪単価) 528,000円(26,870円) 管理費/共益費(坪単価) ー(ー) 保証金/敷金 0ヶ月 / 6ヶ月 償却 0% 礼金 1ヶ月 更新料/再契約料 ー その他費用 ー 仲介手数料 1ヶ月 その他手数料 ー 契約期間 20年 契約種別 普通賃貸借
用途
-
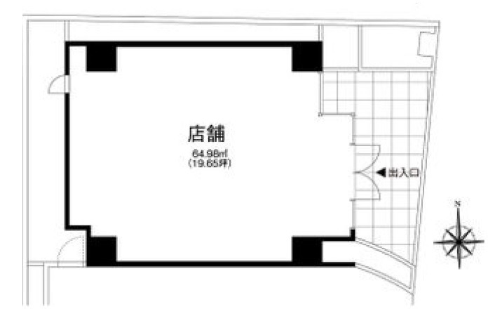
物件の現況 ー 可能用途 指定あり 坪数 19.65坪
- 備考


















