物件ID:180694
情報公開日:2025年11月13日
情報更新日:2026年02月12日
立地
-
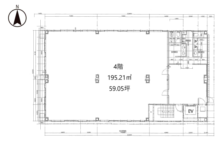
住所 京都市下京区扇酒屋町275-1 建物名/所在階 KOWA東洞院ビル/4階 最寄駅 京都市営地下鉄烏丸線四条駅
徒歩2分近隣駅1 ー 近隣駅2 ー
費用/契約
-
造作価格 ご相談 賃料(坪単価) 995,830円(16,863円) 管理費/共益費(坪単価) 69,300円(1,290円) 保証金/敷金 5,847,600 / ー 償却 ご相談 礼金 ご相談 更新料/再契約料 0ヶ月 その他費用 保証会社・火災保険加入要 仲介手数料 1ヶ月 その他手数料 ー 契約期間 2年 契約種別
用途
-
物件の現況 クリニック 可能用途 指定あり 坪数 59.05坪
- 備考
- 現況:美容外科クリニック跡 引渡し状態相談
内科・幹細胞医療、薬局、外科(ヘルニア)、歯科、心療内科:不可



















