物件ID:180195
情報公開日:2025年11月10日
情報更新日:2026年04月06日
立地
-
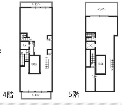
住所 京都市東山区大橋町115 建物名/所在階 尚美ビル/4~5階 最寄駅 京阪本線三条駅
徒歩1分近隣駅1 ー 近隣駅2 ー
費用/契約
-
造作価格 ー 賃料(坪単価) 1,210,000円(14,540円) 管理費/共益費(坪単価) ー(ー) 保証金/敷金 0ヶ月 / 4ヶ月 償却 ご相談 礼金 2ヶ月 更新料/再契約料 ー その他費用 保証会社・火災保険加入要 町費:500円/月 仲介手数料 1ヶ月 その他手数料 ー 契約期間 ー 契約種別 普通賃貸借
用途
-
物件の現況 ー 可能用途 指定あり 坪数 83.22坪
- 備考
- 敷金返還率:5年未満:50%、5年以上100%
看板製作代・ごみ代実費


























