物件ID:194827
情報公開日:2026年03月11日
情報更新日:2026年03月11日
立地
-
住所 京都市南区東九条東山王町17 建物名/所在階 1~3階 最寄駅 JR京都線京都駅
徒歩3分近隣駅1 ー 近隣駅2 ー
費用/契約
-
造作価格 ー 賃料(坪単価) 1,650,000円(38,758円) 管理費/共益費(坪単価) ー(ー) 保証金/敷金 ー / 10ヶ月 償却 ご相談 礼金 0ヶ月 更新料/再契約料 ー その他費用 保証会社・火災保険加入要 仲介手数料 1ヶ月 その他手数料 ー 契約期間 ー 契約種別 普通賃貸借
用途
-
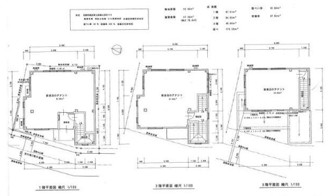
物件の現況 ー 可能用途 指定あり 坪数 42.57坪
- 備考
- 計画案 1F:約16.3坪 2F:約15.8坪 3F:約10.4坪
契約期間:2030年1月31日迄






















