物件ID:191176
情報公開日:2026年02月10日
情報更新日:2026年02月18日
立地
-
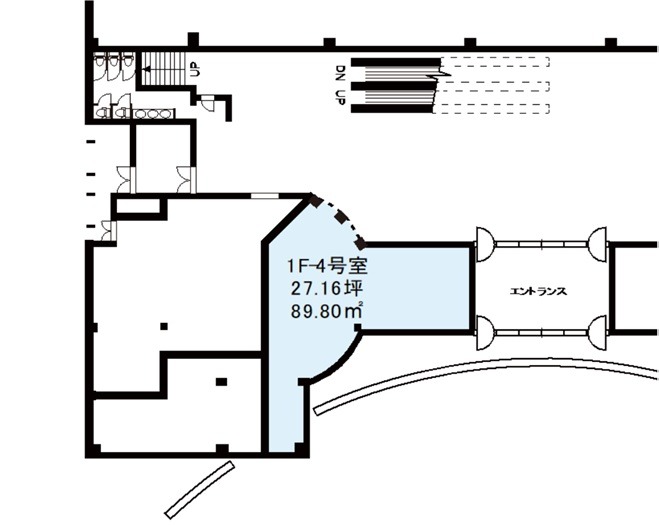
住所 摂津市東一津屋4-10 建物名/所在階 ルッツ南摂津/1階 最寄駅 大阪モノレール線南摂津駅
徒歩2分近隣駅1 阪急京都本線摂津市駅
徒歩25分近隣駅2 大阪メトロ谷町線大日駅
徒歩26分
費用/契約
-
造作価格 ー 賃料(坪単価) 550,000円(20,247円) 管理費/共益費(坪単価) ー(ー) 保証金/敷金 5,000,000 / ー 償却 0 礼金 0ヶ月 更新料/再契約料 ー その他費用 ー 仲介手数料 1ヶ月 その他手数料 ー 契約期間 2年 契約種別
用途
-
物件の現況 ー 可能用途 指定あり 坪数 27.16坪
- 備考
- 指定の保証会社及び家財保険加入必須
駐車場191台入庫後2時間無料(以降30分/100円)
24時間利用相談可





















