物件ID:187768
情報公開日:2026年01月16日
情報更新日:2026年01月16日
立地
-
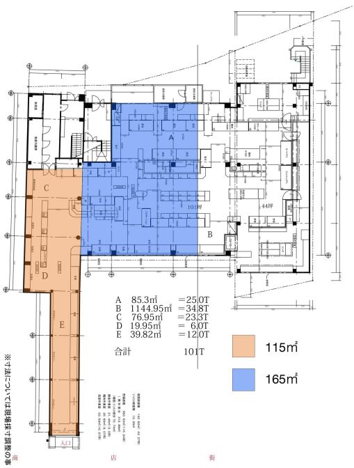
住所 大阪市福島区吉野二丁目8-13 建物名/所在階 リージェンシーⅠ/1階 最寄駅 大阪環状線野田駅
徒歩4分近隣駅1 ー 近隣駅2 ー
費用/契約
-
造作価格 ー 賃料(坪単価) 550,000円(6,493円) 管理費/共益費(坪単価) ー(ー) 保証金/敷金 1,000,000 / ー 償却 ご相談 礼金 1ヶ月 更新料/再契約料 ご相談 その他費用 保証会社・火災保険加入要 商店街組合費要 仲介手数料 1ヶ月 その他手数料 ー 契約期間 1年 契約種別
用途
-
物件の現況 サービス(その他) 可能用途 指定あり 坪数 84.70坪
- 備考
- 賃料:初年度50万、3年目60万、5年目以降70万に変動あり


























