物件ID:185395
情報公開日:2025年12月19日
情報更新日:2026年03月17日
立地
-
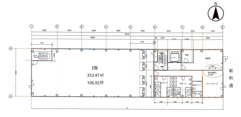
住所 京都市中京区百足屋町374 建物名/所在階 くろちく万蔵ビル/3階 最寄駅 京都市営地下鉄烏丸線四条駅
徒歩5分近隣駅1 ー 近隣駅2 ー
費用/契約
-
造作価格 ー 賃料(坪単価) 1,100,000円(10,288円) 管理費/共益費(坪単価) 132,000円(1,234円) 保証金/敷金 6,000,000 / ー 償却 ご相談 礼金 0ヶ月 更新料/再契約料 ー その他費用 保証会社・火災保険加入要 仲介手数料 1ヶ月 その他手数料 ー 契約期間 10年 契約種別 普通賃貸借
用途
-
物件の現況 サービス(その他) 可能用途 指定あり 坪数 106.92坪
- 備考
- 引渡し:事務所仕様



















