物件ID:185082
情報公開日:2025年12月17日
情報更新日:2026年03月17日
立地
-
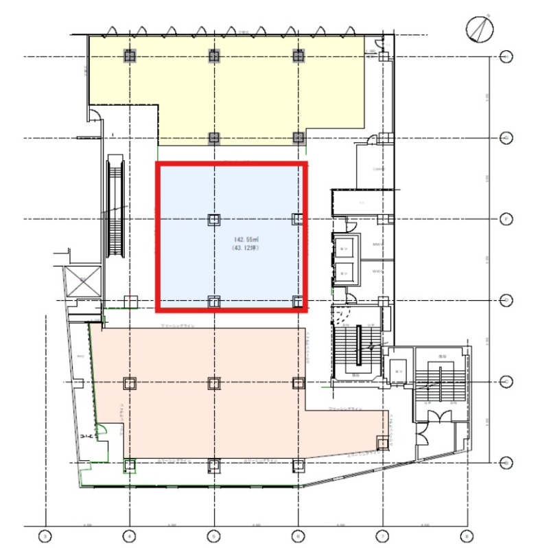
住所 枚方市岡東町18-20 建物名/所在階 枚方中央ビル/2階 最寄駅 京阪本線枚方市駅
徒歩1分近隣駅1 ー 近隣駅2 ー
費用/契約
-
造作価格 ー 賃料(坪単価) 426,888円(9,900円) 管理費/共益費(坪単価) 129,360円(3,300円) 保証金/敷金 ー / 6ヶ月 償却 ご相談 礼金 1ヶ月 更新料/再契約料 ー その他費用 火災保険・保証会社加入要 仲介手数料 1ヶ月 その他手数料 ー 契約期間 10年 契約種別 普通賃貸借
用途
-
物件の現況 サービス(その他) 可能用途 指定あり 坪数 43.12坪
- 備考
- 業種バッティングNG(ヨガ教室、ドラッグストア等) 分割相談可
賃料、契約期間応相談 解約引実費 24時間機械警備 EV2基
個別空調 LED照明に取替 駐車スペース有(タイムズ提携)



















