物件ID:169046
情報公開日:2025年08月07日
情報更新日:2025年12月12日
立地
-
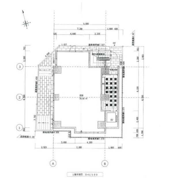
住所 大阪市北区天満二丁目13-11 建物名/所在階 ヴェルレジデンス天満 T0001/1階 最寄駅 JR東西線大阪天満宮駅
徒歩5分近隣駅1 ー 近隣駅2 ー
費用/契約
-
造作価格 ー 賃料(坪単価) 390,500円(18,595円) 管理費/共益費(坪単価) ー(ー) 保証金/敷金 0ヶ月 / 0ヶ月 償却 ご相談 礼金 2ヶ月 更新料/再契約料 ー その他費用 保証会社・火災保険加入要 仲介手数料 1ヶ月 その他手数料 ー 契約期間 2年 契約種別
用途
-
物件の現況 ー 可能用途 指定あり 坪数 21.00坪
- 備考
- 前面ガラス張り 1フロア1テナント
























