物件ID:167017
情報公開日:2025年07月18日
情報更新日:2026年01月14日
立地
-
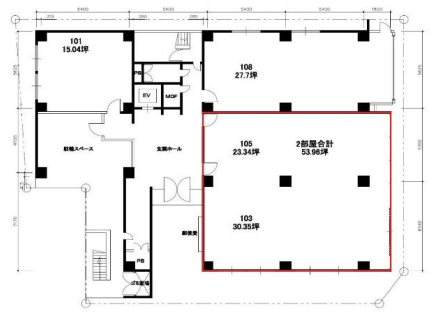
住所 大阪市北区西天満一丁目10-8 建物名/所在階 西天満第11松屋ビル 103区画/1階 最寄駅 大阪メトロ堺筋線北浜駅
徒歩5分近隣駅1 ー 近隣駅2 ー
費用/契約
-
造作価格 ー 賃料(坪単価) 770,000円(14,341円) 管理費/共益費(坪単価) 107,400円(2,200円) 保証金/敷金 ー / 0ヶ月 償却 0% 礼金 0ヶ月 更新料/再契約料 ー その他費用 保証会社・火災保険加入要 仲介手数料 1ヶ月 その他手数料 ー 契約期間 ー 契約種別
用途
-
物件の現況 ー 可能用途 指定あり 坪数 53.69坪
- 備考
- 軽飲食、物販、クリニック相談可
ガス、給排水あり 24時間利用可能
機械警備 個別空調 駐車場有



















