物件ID:166649
情報公開日:2025年07月16日
情報更新日:2026年02月12日
立地
-
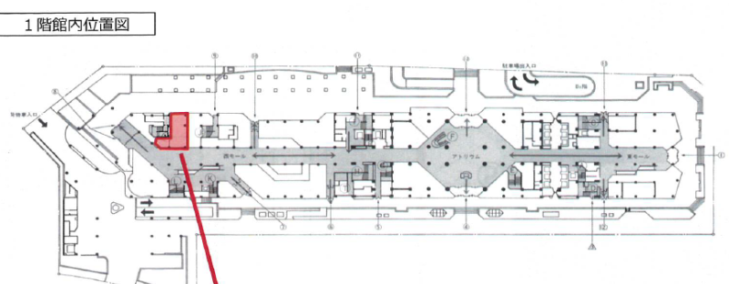
住所 大阪市中央区城見一丁目3-7 建物名/所在階 松下IMPビル/1階 最寄駅 大阪メトロ長堀鶴見緑地線大阪ビジネスパーク駅
徒歩1分近隣駅1 ー 近隣駅2 ー
費用/契約
-
造作価格 ご相談 賃料(坪単価) 630,520円(22,000円) 管理費/共益費(坪単価) ー(ー) 保証金/敷金 ー / 12ヶ月 償却 0% 礼金 ご相談 更新料/再契約料 ー その他費用 保証会社・火災保険加入要 仲介手数料 1ヶ月 その他手数料 ー 契約期間 3年 契約種別 普通賃貸借
用途
-
物件の現況 そば・うどん・麺類 可能用途 指定あり 坪数 28.66坪
- 備考
- 厨房機器残置有 トイレ・機械警備・EV・駐車場有
平日・土・日・祝:7:00~23:00まで開館



























