物件ID:188105
情報公開日:2026年01月19日
情報更新日:2026年01月19日
立地
-
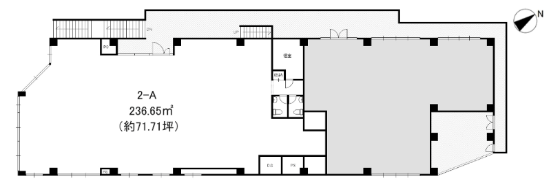
住所 埼玉県春日部市粕壁東二丁目7-20 建物名/所在階 ナカヤコアビル 2F-A /2階 最寄駅 東武伊勢崎線春日部駅
徒歩10分近隣駅1 ー 近隣駅2 ー
費用/契約
-
造作価格 ー 賃料(坪単価) 495,000円(6,914円) 管理費/共益費(坪単価) ー(ー) 保証金/敷金 1,800,000 / ー 償却 ご相談 礼金 1ヶ月 更新料/再契約料 ー その他費用 ー 仲介手数料 1ヶ月 その他手数料 ー 契約期間 3年 契約種別
用途
-
物件の現況 サービス(その他) 可能用途 指定あり 坪数 71.59坪
- 備考




















