物件ID:185219
情報公開日:2025年12月18日
情報更新日:2025年12月18日
立地
-
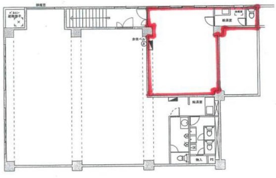
住所 神奈川県横浜市瀬谷区瀬谷四丁目5-12 建物名/所在階 サンライフ平本/2階 最寄駅 相鉄本線瀬谷駅
徒歩2分近隣駅1 ー 近隣駅2 ー
費用/契約
-
造作価格 ー 賃料(坪単価) 99,500円(8,804円) 管理費/共益費(坪単価) 11,000円(973円) 保証金/敷金 7ヶ月 / ー 償却 ご相談 礼金 1ヶ月 更新料/再契約料 ー その他費用 ー 仲介手数料 1ヶ月 その他手数料 ー 契約期間 3年 契約種別 普通賃貸借
用途
-
物件の現況 サービス(その他) 可能用途 指定あり 坪数 11.30坪
- 備考



















