物件ID:184879
情報公開日:2025年12月15日
情報更新日:2025年12月15日
立地
-
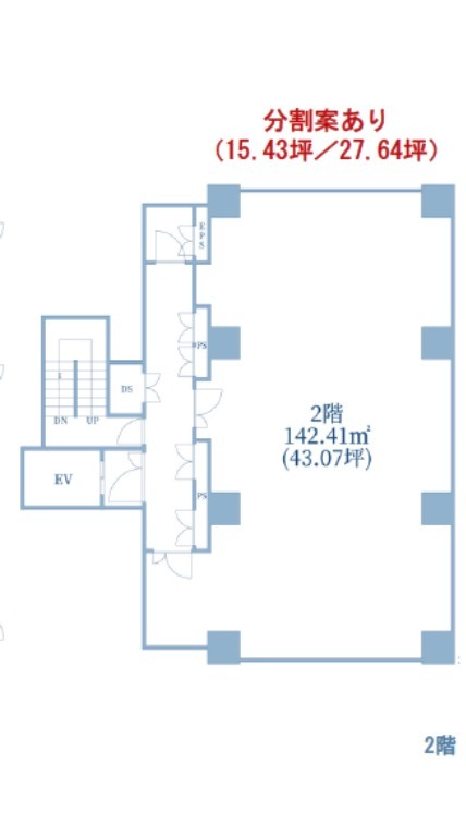
住所 東京都墨田区錦糸三丁目7-7 建物名/所在階 マイホーム錦糸/2階 最寄駅 JR中央・総武線錦糸町駅
徒歩3分近隣駅1 東京メトロ半蔵門線錦糸町駅
徒歩3分近隣駅2 ー
費用/契約
-
造作価格 ー 賃料(坪単価) 1,452,000円(111,446円) 管理費/共益費(坪単価) 72,600円(5,572円) 保証金/敷金 8ヶ月 / ー 償却 ご相談 礼金 ご相談 更新料/再契約料 1ヶ月 その他費用 ー 仲介手数料 1ヶ月 その他手数料 ー 契約期間 3年 契約種別
用途
-
物件の現況 ー 可能用途 指定あり 坪数 13.03坪
- 備考






















