物件ID:184566
情報公開日:2025年12月12日
情報更新日:2026年01月07日
立地
-
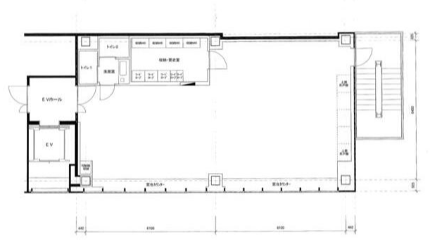
住所 埼玉県さいたま市大宮区仲町二丁目9-9 建物名/所在階 仲町シロタビルEAST/2階 最寄駅 JR京浜東北線大宮駅
徒歩4分近隣駅1 宇都宮線大宮駅
徒歩4分近隣駅2 JR高崎線大宮駅
徒歩4分
費用/契約
-
造作価格 ー 賃料(坪単価) 753,280円(26,401円) 管理費/共益費(坪単価) 78,540円(2,752円) 保証金/敷金 10ヶ月 / 0ヶ月 償却 ご相談 礼金 2ヶ月 更新料/再契約料 ー その他費用 ー 仲介手数料 1ヶ月 その他手数料 ー 契約期間 5年 契約種別 普通賃貸借
用途
-
物件の現況 サービス(その他) 可能用途 指定あり 坪数 28.53坪
- 備考



























