物件ID:184179
情報公開日:2025年12月10日
情報更新日:2026年01月18日
立地
-
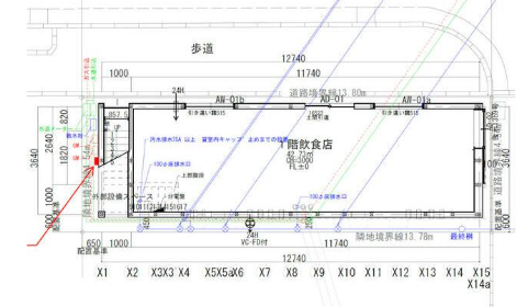
住所 東京都港区芝大門一丁目5-3 建物名/所在階 森ビル 1階/1階 最寄駅 都営浅草線大門駅
徒歩2分近隣駅1 ー 近隣駅2 ー
費用/契約
-
造作価格 ー 賃料(坪単価) 385,000円(29,785円) 管理費/共益費(坪単価) ー(ー) 保証金/敷金 2,310,000 / ー 償却 3ヶ月 礼金 2ヶ月 更新料/再契約料 ー その他費用 ー 仲介手数料 1ヶ月 その他手数料 ー 契約期間 6年 契約種別 普通賃貸借
用途
-
物件の現況 ー 可能用途 ご相談 坪数 12.93坪
- 備考



















