物件ID:182414
情報公開日:2025年11月27日
情報更新日:2025年12月01日
立地
-
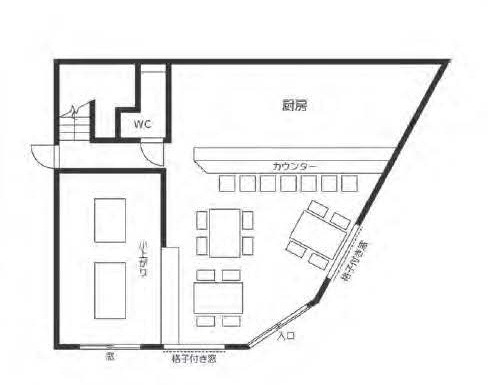
住所 東京都稲城市百村1608-7 建物名/所在階 百村店舗 1F/1階 最寄駅 京王相模原線稲城駅
徒歩2分近隣駅1 ー 近隣駅2 ー
費用/契約
-
造作価格 ー 賃料(坪単価) 250,000円(16,528円) 管理費/共益費(坪単価) ー(ー) 保証金/敷金 8ヶ月 / ー 償却 20% 礼金 1ヶ月 更新料/再契約料 ー その他費用 ー 仲介手数料 1ヶ月 その他手数料 ー 契約期間 3年 契約種別
用途
-
物件の現況 ー 可能用途 指定あり 坪数 15.13坪
- 備考
- 営業時間22:00(応相談)
スケルトン貸の予定ですが、居抜きも相談可能です。
1月31日に退去予定です。



















