物件ID:181930
情報公開日:2025年11月22日
情報更新日:2025年11月22日
立地
-
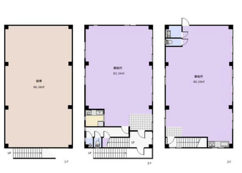
住所 埼玉県志木市上宗岡三丁目11-47 建物名/所在階 埼玉県志木市上宗岡3丁目11 店舗 1F~3F/1~3階 最寄駅 東武東上線志木駅 近隣駅1 ー 近隣駅2 ー
費用/契約
-
造作価格 ー 賃料(坪単価) 440,000円(7,534円) 管理費/共益費(坪単価) ー(ー) 保証金/敷金 ー / 3ヶ月 償却 ご相談 礼金 1ヶ月 更新料/再契約料 ー その他費用 ー 仲介手数料 1ヶ月 その他手数料 ー 契約期間 3年 契約種別
用途
-
物件の現況 サービス(その他) 可能用途 指定あり 坪数 58.40坪
- 備考




















