物件ID:181725
情報公開日:2025年11月20日
情報更新日:2025年11月20日
立地
-
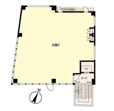
住所 東京都新宿区新宿六丁目27-12 建物名/所在階 ユニオン新宿ビル/3階 最寄駅 東京メトロ副都心線東新宿駅
徒歩6分近隣駅1 ー 近隣駅2 ー
費用/契約
-
造作価格 ー 賃料(坪単価) 1,595,000円(32,864円) 管理費/共益費(坪単価) ー(ー) 保証金/敷金 8ヶ月 / ー 償却 ご相談 礼金 1ヶ月 更新料/再契約料 ー その他費用 保証会社・火災保険加入要 仲介手数料 1ヶ月 その他手数料 ー 契約期間 10年 契約種別 普通賃貸借
用途
-
物件の現況 ー 可能用途 指定あり 坪数 48.53坪
- 備考
- 都市ガス エレベーター
契約時に償却2ヶ月



















