物件ID:181701
情報公開日:2025年11月20日
情報更新日:2025年11月20日
立地
-
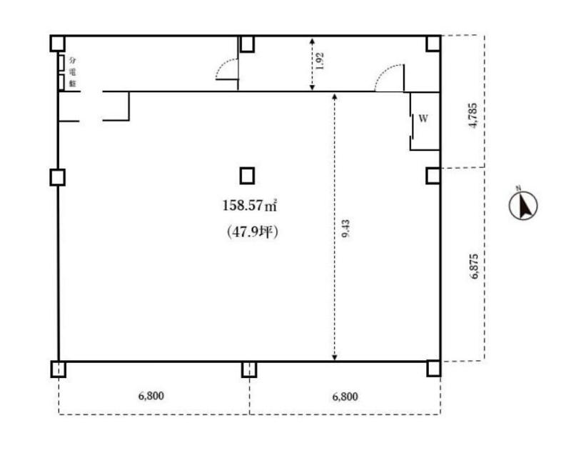
住所 神奈川県大和市深見西二丁目2-2 建物名/所在階 アーバンライフ/1階 最寄駅 小田急江ノ島線大和駅
徒歩11分近隣駅1 ー 近隣駅2 ー
費用/契約
-
造作価格 ー 賃料(坪単価) 638,000円(13,300円) 管理費/共益費(坪単価) 55,000円(1,146円) 保証金/敷金 ー / 6ヶ月 償却 ご相談 礼金 1ヶ月 更新料/再契約料 1ヶ月 その他費用 ー 仲介手数料 1ヶ月 その他手数料 ー 契約期間 3年 契約種別
用途
-
物件の現況 ー 可能用途 指定あり 坪数 47.97坪
- 備考























