物件ID:181465
情報公開日:2025年11月19日
情報更新日:2025年11月19日
立地
-
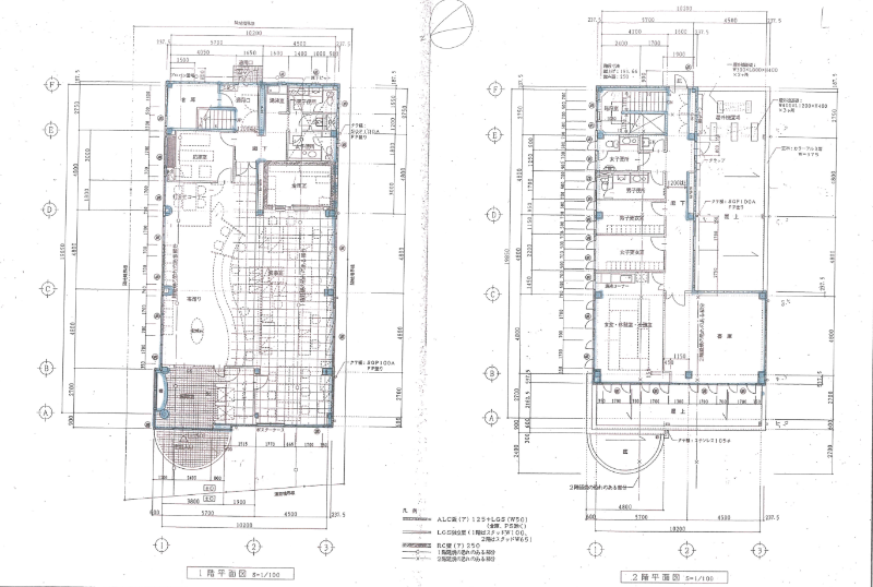
住所 東京都国立市富士見台一丁目12-8 建物名/所在階 (仮称)北島ビル/1~2階 最寄駅 JR南武線谷保駅
徒歩3分近隣駅1 ー 近隣駅2 ー
費用/契約
-
造作価格 ー 賃料(坪単価) 1,210,000円(10,638円) 管理費/共益費(坪単価) ー(ー) 保証金/敷金 10ヶ月 / ー 償却 ご相談 礼金 1ヶ月 更新料/再契約料 ご相談 その他費用 無 仲介手数料 1ヶ月 その他手数料 ー 契約期間 10年 契約種別 普通賃貸借
用途
-
物件の現況 サービス(その他) 可能用途 何業も可 坪数 113.74坪
- 備考



















