物件ID:181443
情報公開日:2025年11月19日
情報更新日:2025年11月21日
立地
-
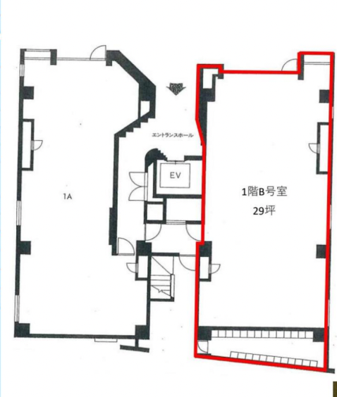
住所 東京都文京区湯島三丁目45-10 建物名/所在階 ジェストビル/1階 最寄駅 東京メトロ千代田線湯島駅
徒歩1分近隣駅1 JR山手線御徒町駅
徒歩6分近隣駅2 JR京浜東北線御徒町駅
徒歩6分
費用/契約
-
造作価格 ー 賃料(坪単価) 1,116,500円(36,016円) 管理費/共益費(坪単価) 63,800円(2,058円) 保証金/敷金 6ヶ月 / 0ヶ月 償却 2ヶ月 礼金 1ヶ月 更新料/再契約料 1ヶ月 その他費用 ー 仲介手数料 1ヶ月 その他手数料 ー 契約期間 2年 契約種別 普通賃貸借
用途
-
物件の現況 食物販 可能用途 何業も可 坪数 31.00坪
- 備考
- 1階路面店舗 ○看板取り付け位置有り
現状ミュージックバー。
年内契約で居抜きご相談可能





















