物件ID:180808
情報公開日:2025年11月13日
情報更新日:2025年11月13日
立地
-
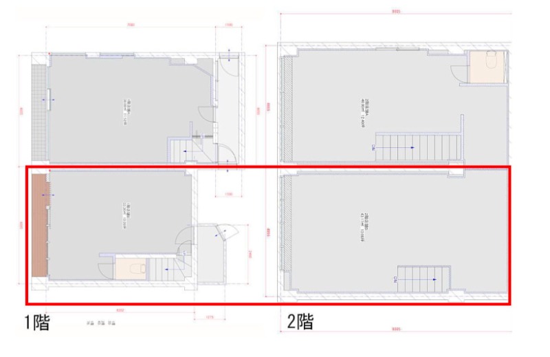
住所 千葉県船橋市西船四丁目24-5 建物名/所在階 第3十河ビル 101号室 1-2階/1~2階 最寄駅 JR中央・総武線西船橋駅
徒歩1分近隣駅1 東京メトロ東西線西船橋駅
徒歩1分近隣駅2 JR武蔵野線西船橋駅
徒歩1分
費用/契約
-
造作価格 ご相談 賃料(坪単価) 1,045,000円(45,140円) 管理費/共益費(坪単価) ー(ー) 保証金/敷金 10ヶ月 / ー 償却 3ヶ月 礼金 3ヶ月 更新料/再契約料 ー その他費用 ー 仲介手数料 1ヶ月 その他手数料 ー 契約期間 10年 契約種別 普通賃貸借
用途
-
物件の現況 ラーメン 可能用途 指定あり 坪数 23.15坪
- 備考
- 前業態: ラーメン 現 況: 閉店済/現状渡し
排気設備: 外部ダクト無(直吹) 席 数: ------ グリスト
営業年数: 20年 引渡時期: 2026年02月01日
























