物件ID:180726
情報公開日:2025年11月13日
情報更新日:2025年11月13日
立地
-
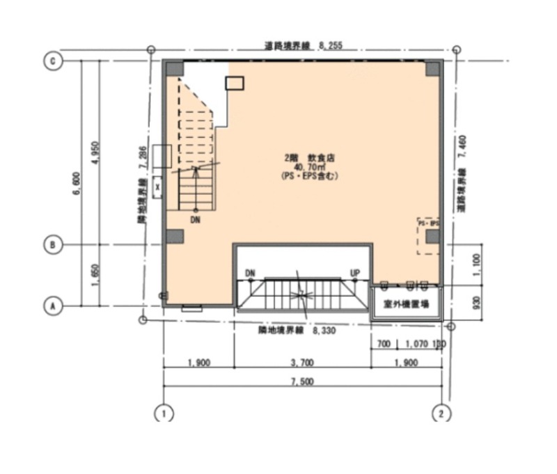
住所 東京都港区西麻布三丁目13-1 建物名/所在階 THE LIVRE NISHIAZABU/2階 最寄駅 東京メトロ日比谷線六本木駅
徒歩9分近隣駅1 ー 近隣駅2 ー
費用/契約
-
造作価格 ー 賃料(坪単価) 495,000円(41,596円) 管理費/共益費(坪単価) ー(ー) 保証金/敷金 10ヶ月 / ー 償却 2ヶ月 礼金 1ヶ月 更新料/再契約料 1ヶ月 その他費用 火災保険・保証会社加入要 仲介手数料 1ヶ月 その他手数料 ー 契約期間 2年 契約種別
用途
-
物件の現況 ー 可能用途 指定あり 坪数 11.90坪
- 備考
- 風営法許可取得が必要な業種・民泊ホテル業はNG
排気ダクト設置有/業種により消炎ダクトの設置必要
24時間利用可(深夜営業可) 新耐震 EV無し




















