物件ID:179839
情報公開日:2025年11月07日
情報更新日:2025年11月07日
立地
-
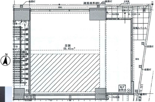
住所 東京都千代田区外神田四丁目12-6 建物名/所在階 ラティエラ秋葉原 1F/1階 最寄駅 東京メトロ銀座線末広町駅
徒歩3分近隣駅1 ー 近隣駅2 ー
費用/契約
-
造作価格 ー 賃料(坪単価) 525,300円(25,004円) 管理費/共益費(坪単価) ー(ー) 保証金/敷金 ー / 12ヶ月 償却 2ヶ月 礼金 0ヶ月 更新料/再契約料 ー その他費用 ー 仲介手数料 1ヶ月 その他手数料 ー 契約期間 10年 契約種別 普通賃貸借
用途
-
物件の現況 ー 可能用途 指定あり 坪数 21.01坪
- 備考



















