物件ID:179581
情報公開日:2025年11月05日
情報更新日:2025年11月05日
立地
-
住所 神奈川県川崎市中原区新丸子町739-15 建物名/所在階 ヴェスタンブルクⅢ 101/1階 最寄駅 東急東横線新丸子駅
徒歩2分近隣駅1 東急目黒線新丸子駅
徒歩2分近隣駅2 JR横須賀線武蔵小杉駅
徒歩9分
費用/契約
-
造作価格 ー 賃料(坪単価) 385,000円(25,202円) 管理費/共益費(坪単価) 22,000円(1,440円) 保証金/敷金 6ヶ月 / ご相談 償却 3ヶ月 礼金 2ヶ月 更新料/再契約料 ご相談 その他費用 袖看板使用:27,500円 仲介手数料 1ヶ月 その他手数料 ー 契約期間 5年 契約種別 普通賃貸借
用途
-
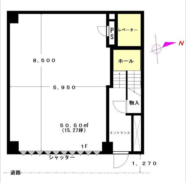
物件の現況 ー 可能用途 指定あり 坪数 15.28坪
- 備考
- 業態につきましてはお気軽にスタッフまでお申し付けくださいませ。
飲食店は不可ですがカフェ程度であればご相談可能です。
新丸子駅すぐの好立地路面店舗物件です。























