物件ID:179243
情報公開日:2025年11月03日
情報更新日:2025年11月03日
立地
-
住所 東京都板橋区高島平八丁目4-4 建物名/所在階 COCOTAIL/2階 最寄駅 都営三田線高島平駅
徒歩1分近隣駅1 ー 近隣駅2 ー
費用/契約
-
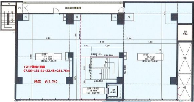
造作価格 ー 賃料(坪単価) 880,000円(11,114円) 管理費/共益費(坪単価) 44,000円(555円) 保証金/敷金 6ヶ月 / ー 償却 1ヶ月 礼金 2ヶ月 更新料/再契約料 ー その他費用 ー 仲介手数料 1ヶ月 その他手数料 ー 契約期間 3年 契約種別
用途
-
物件の現況 ー 可能用途 ご相談 坪数 79.18坪
- 備考



















