物件ID:178990
情報公開日:2025年10月31日
情報更新日:2025年10月31日
立地
-
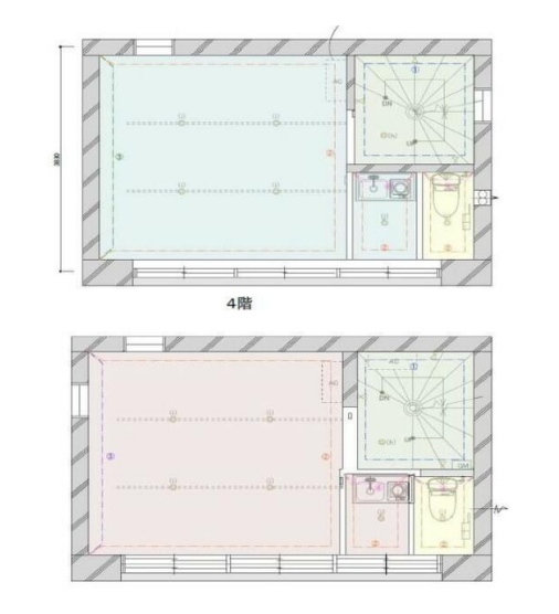
住所 東京都港区北青山三丁目5-16 建物名/所在階 m-cube表参道(エムキュー·ブオモテサンドウ)3F-4F/3~4階 最寄駅 東京メトロ銀座線表参道駅
徒歩2分近隣駅1 ー 近隣駅2 ー
費用/契約
-
造作価格 ー 賃料(坪単価) ご相談(0円) 管理費/共益費(坪単価) 55,000円(4,043円) 保証金/敷金 8ヶ月 / ー 償却 2ヶ月 礼金 0ヶ月 更新料/再契約料 1ヶ月 その他費用 管理費等55,000円/月 仲介手数料 1ヶ月 その他手数料 ー 契約期間 3年 契約種別 普通賃貸借
用途
-
物件の現況 サービス(その他) 可能用途 指定あり 坪数 13.60坪
- 備考
- 青山通り沿い·リノベーション店舗使用も相談可!



















