物件ID:178590
情報公開日:2025年10月28日
情報更新日:2025年10月28日
立地
-
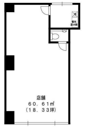
住所 東京都墨田区押上一丁目15-7 建物名/所在階 TREE FRONT/1階 最寄駅 都営浅草線押上(スカイツリー前)駅
徒歩2分近隣駅1 ー 近隣駅2 ー
費用/契約
-
造作価格 ー 賃料(坪単価) 434,500円(23,704円) 管理費/共益費(坪単価) ー(ー) 保証金/敷金 ー / 1,185,000 償却 880,000 礼金 1,086,250 更新料/再契約料 1ヶ月 その他費用 ー 仲介手数料 1ヶ月 その他手数料 ー 契約期間 3年 契約種別
用途
-
物件の現況 サービス(その他) 可能用途 ご相談 坪数 18.33坪
- 備考
- トイレあり インターネット使用料無料 オートロック 防犯カメラ
オートロック 防犯カメラ エレベーター 宅配BOX CATV



















