物件ID:178583
情報公開日:2025年10月28日
情報更新日:2025年10月28日
立地
-
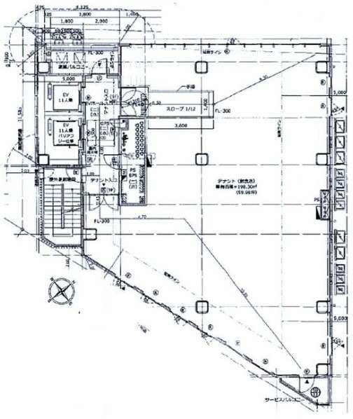
住所 東京都千代田区有楽町二丁目3-2 建物名/所在階 9階 最寄駅 JR山手線有楽町駅
徒歩3分近隣駅1 ー 近隣駅2 ー
費用/契約
-
造作価格 ー 賃料(坪単価) 2,639,120円(43,995円) 管理費/共益費(坪単価) ー(ー) 保証金/敷金 10ヶ月 / 0ヶ月 償却 10% 礼金 1ヶ月 更新料/再契約料 1ヶ月 その他費用 ー 仲介手数料 1ヶ月 その他手数料 ー 契約期間 ー 契約種別 普通賃貸借
用途
-
物件の現況 ー 可能用途 ご相談 坪数 59.99坪
- 備考





















