物件ID:178388
情報公開日:2025年10月27日
情報更新日:2025年10月31日
立地
-
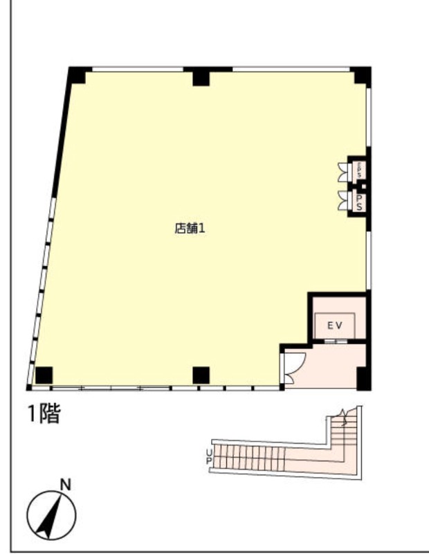
住所 東京都新宿区新宿六丁目27-12 建物名/所在階 ユニオン新宿ビル/1階 最寄駅 東京メトロ丸ノ内線新宿三丁目駅
徒歩5分近隣駅1 都営大江戸線東新宿駅
徒歩6分近隣駅2 JR山手線新宿駅
徒歩8分
費用/契約
-
造作価格 ー 賃料(坪単価) 2,450,000円(160,634円) 管理費/共益費(坪単価) ー(ー) 保証金/敷金 8ヶ月 / ー 償却 2ヶ月 礼金 1ヶ月 更新料/再契約料 ー その他費用 ー 仲介手数料 1ヶ月 その他手数料 ー 契約期間 10年 契約種別 普通賃貸借
用途
-
物件の現況 ー 可能用途 指定あり 坪数 15.25坪
- 備考
- 即入居可能

























