物件ID:177548
情報公開日:2025年10月20日
情報更新日:2026年01月13日
立地
-
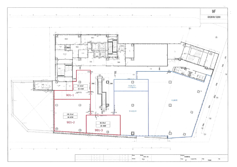
住所 千葉県千葉市中央区富士見二丁目1-1 建物名/所在階 マインズ千葉/9階 最寄駅 JR中央・総武線千葉駅
徒歩1分近隣駅1 ー 近隣駅2 ー
費用/契約
-
造作価格 ー 賃料(坪単価) 873,477円(29,700円) 管理費/共益費(坪単価) 88,230円(3,300円) 保証金/敷金 0ヶ月 / 10ヶ月 償却 ご相談 礼金 1ヶ月 更新料/再契約料 ー その他費用 内装監理費:17,000円/坪(税別) 仲介手数料 1ヶ月 その他手数料 ー 契約期間 ー 契約種別 普通賃貸借
用途
-
物件の現況 ー 可能用途 指定あり 坪数 29.41坪
- 備考
- 駅前商業施設内 募集区画
クリニック歓迎(歯科入居済み)
看板使用料:100,000円(税別)



















