物件ID:177467
情報公開日:2025年10月19日
情報更新日:2026年01月20日
立地
-
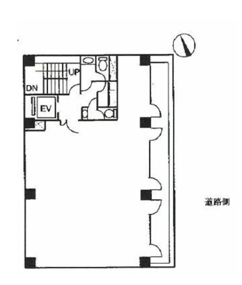
住所 東京都中央区新富一丁目15-4 建物名/所在階 アルファ新富ビル 5F/5階 最寄駅 東京メトロ日比谷線八丁堀駅
徒歩3分近隣駅1 ー 近隣駅2 ー
費用/契約
-
造作価格 ー 賃料(坪単価) 451,000円(13,427円) 管理費/共益費(坪単価) 110,000円(3,275円) 保証金/敷金 4ヶ月 / ー 償却 20% 礼金 0ヶ月 更新料/再契約料 ー その他費用 ー 仲介手数料 1ヶ月 その他手数料 ー 契約期間 2年 契約種別
用途
-
物件の現況 サービス(その他) 可能用途 指定あり 坪数 33.59坪
- 備考



















