物件ID:177346
情報公開日:2025年10月17日
情報更新日:2025年10月17日
立地
-
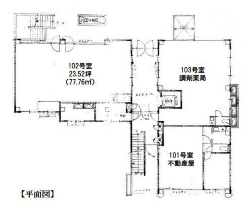
住所 東京都練馬区貫井一丁目1-2 建物名/所在階 加瀬ビル223/1階 最寄駅 西武池袋線中村橋駅
徒歩1分近隣駅1 ー 近隣駅2 ー
費用/契約
-
造作価格 ー 賃料(坪単価) ご相談(0円) 管理費/共益費(坪単価) 50,600円(2,151円) 保証金/敷金 3ヶ月 / 0ヶ月 償却 ご相談 礼金 1ヶ月 更新料/再契約料 1ヶ月 その他費用 ー 仲介手数料 1ヶ月 その他手数料 ー 契約期間 3年 契約種別 普通賃貸借
用途
-
物件の現況 サービス(その他) 可能用途 ご相談 坪数 23.52坪
- 備考



















