物件ID:176868
情報公開日:2025年10月14日
情報更新日:2025年10月14日
立地
-
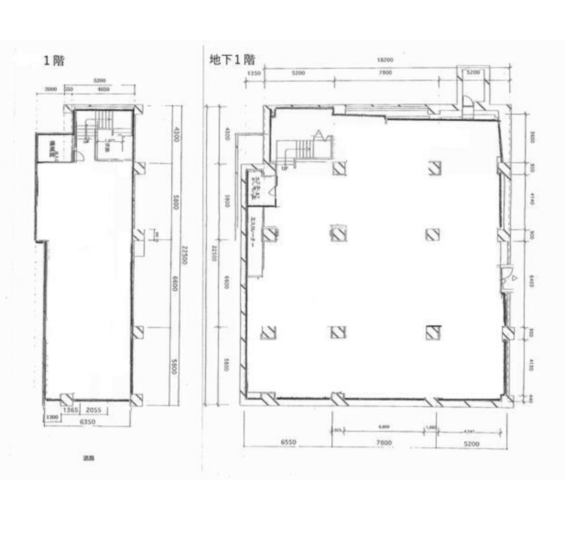
住所 東京都杉並区天沼三丁目3-7 建物名/所在階 ライオンズマンション荻窪駅前/地下1~1階 最寄駅 JR中央線(快速)荻窪駅
徒歩2分近隣駅1 JR中央・総武線荻窪駅
徒歩2分近隣駅2 東京メトロ丸ノ内線荻窪駅
徒歩2分
費用/契約
-
造作価格 ー 賃料(坪単価) 3,080,000円(18,780円) 管理費/共益費(坪単価) ー(ー) 保証金/敷金 22,400,000 / 0ヶ月 償却 20% 礼金 1ヶ月 更新料/再契約料 1ヶ月 その他費用 ー 仲介手数料 1ヶ月 その他手数料 ー 契約期間 10年 契約種別 普通賃貸借
用途
-
物件の現況 ー 可能用途 何業も可 坪数 164.00坪
- 備考
- 1階及び地下の一括貸し ※スケルトン渡し
何業も可 荻窪駅前駅より徒歩2分の好立地























