物件ID:176780
情報公開日:2025年10月11日
情報更新日:2025年10月11日
立地
-
住所 東京都北区赤羽南一丁目6-5 建物名/所在階 鈴木ビル 3F.4F 赤羽/3~4階 最寄駅 JR京浜東北線赤羽駅
徒歩1分近隣駅1 ー 近隣駅2 ー
費用/契約
-
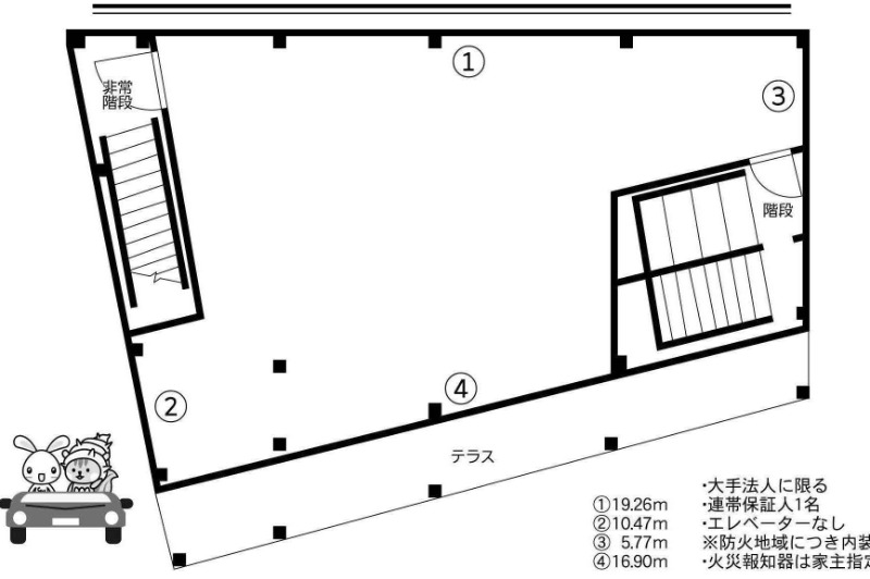
造作価格 ー 賃料(坪単価) 680,000円(17,913円) 管理費/共益費(坪単価) ー(ー) 保証金/敷金 4,080,000 / ー 償却 2,720,000 礼金 680,000 更新料/再契約料 ー その他費用 ー 仲介手数料 1ヶ月 その他手数料 ー 契約期間 9年 契約種別 普通賃貸借
用途
-
物件の現況 サービス(その他) 可能用途 指定あり 坪数 37.96坪
- 備考




















