物件ID:176677
情報公開日:2025年10月10日
情報更新日:2025年10月10日
立地
-
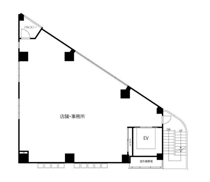
住所 東京都新宿区新宿三丁目11-11 建物名/所在階 9階 最寄駅 東京メトロ丸ノ内線新宿三丁目駅
徒歩2分近隣駅1 ー 近隣駅2 ー
費用/契約
-
造作価格 ー 賃料(坪単価) 825,000円(27,464円) 管理費/共益費(坪単価) 165,000円(5,492円) 保証金/敷金 12ヶ月 / 0ヶ月 償却 2ヶ月 礼金 1ヶ月 更新料/再契約料 1ヶ月 その他費用 ー 仲介手数料 1ヶ月 その他手数料 ー 契約期間 2年 契約種別
用途
-
物件の現況 ー 可能用途 指定あり 坪数 30.04坪
- 備考





















