物件ID:176057
情報公開日:2025年10月06日
情報更新日:2025年10月06日
立地
-
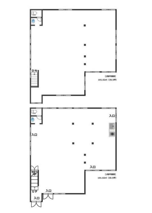
住所 神奈川県川崎市宮前区神木本町四丁目22-2 建物名/所在階 神木本町4丁目/1~2階 最寄駅 東急田園都市線宮崎台駅
徒歩20分近隣駅1 ー 近隣駅2 ー
費用/契約
-
造作価格 ー 賃料(坪単価) 495,000円(8,099円) 管理費/共益費(坪単価) ー(ー) 保証金/敷金 0ヶ月 / 4ヶ月 償却 2ヶ月 礼金 1ヶ月 更新料/再契約料 1ヶ月 その他費用 ー 仲介手数料 1ヶ月 その他手数料 ー 契約期間 3年 契約種別
用途
-
物件の現況 ー 可能用途 指定あり 坪数 61.12坪
- 備考



















